Gambar
Sketsa
Contoh Gambar Sketsa
Gambar
sketsa adalah hasil pemikiran pertama berdasarkan data informasi yang
diterima dalam perencanaan suatu bangunan. Gambar sketsa merupakan gambar
yang jelas tentang denah pembagian ruangan, bentuk bangunan (biasanya gambar
perspektif), serta kemungkinan pelaksanaannya.
Gambar
Pra-Rencana
Contoh Gambar Pra-Rencana
Gambar
ini terdiri dari gambar sketsa dilengkapi dengan beberapa gambar tampak dan potongan yang dianggap penting.Gambar pra-rencana
biasanya dilengkapi dengan anggaran biaya taksiran yang dihitung berdasarkan
per m3 luas lantai atau setiap m3 isi ruangan.Gambar
pra-rencana biasa digunakan sebagai dasar dalam menentukan biaya antara
perencana dengan pemberi tugas.
Gambar Situasi
Contoh Gambar Situasi
Gambar
situasi adalah suatu gambar teknik yang melukiskan letak atau posisi bangunan pada arah daerah yang akan dibangun, lengkap
memperlihatkan rencana halaman, pagar, jalan masuk dan saluran pembuangan air
serta sempadan.Gambar situasi biasanya digambar dalam skala 1:200 atau 1:500.
Gambar
Denah
Contoh Gambar Denah
Gambar
denah adalah gambar suatu yang melukiskan tampak atas dari suatu bangunan setelah dipotong setinggi ±1m dari permukaan
lantai. Dari gambar denah akan terlihat bentuk, batas, ukuran serta
perlengkapan ruangan yang sifatnya permanen dan ada didalam bangunan tersebut. Karena
dipotong ±1m dari permukaan lantai, maka lebar pintu/jendela akan terlihat
dengan jelas, sedangkan bouvenlight dan bentuk atap tergambar dengan garis
strip-strip. Pada gambar denah dicantumkan/diperlihatkan daerah pemotongan
sebagai pedoman pembuatan gambar potongan.
Gambar
Potongan
Contoh Gambar Potongan
Gambar
potongan adalah gambar yang bertujuan memperlihatkan keadaan serta bentuk konstruksi dari suatu bangunan sekaligus
memperjelas ukurannya, mulai dari lantai, dasar pondasi, posisi serta elevasi
pintu/jendela, ketinggian balok keliling, ketinggian bubungan atap dan
lain-lain. Gambar potongan terdiri dari gambar potongan memanjang dan gambar
potongan melintang. Penentuan gambar potongan diambil pada bagian yang
membutuhkan kejelasan suatu konstruksi bangunan. Skala yang digunakan untuk
menggambar gambar potongan adalah 1:100.
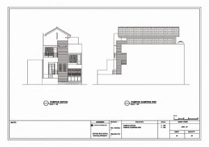
Gambar
Tampak
Contoh Gambar Tampak
Gambar
tampak adalah suatu gambar teknik yang memperlihatkan bagaimana bentuk luas suatu bangunan, penggambarannya
menggunakan/mengikuti sistem proyeksi ortogonal, dimana satu bidang proyeksi
hanya akan memperlihatkan satu sisi bangunan tersebut. Suatu gambar denah
terdiri dari 4 gambar tampak yaitu: tampak muka, tampak samping kanan, tampak
samping kiri dan tampak belakang. Gambar tampak tidak perlu dilengkapi dengan
ukuran baik lebar, panjang maupun tinggi bangunan, tetapi harus digambar dengan
semenarik mungkin lengkap dengan dekorasi sesuai dengan perencanaannya. Gambar
tampak disebut juga gambar arsitektur, dan digambarkan dengan skala 1:100.
Gambar
Struktur
Contoh Gambar Struktur
Gambar
struktur adalah suatu gambar teknik berupa gambar rangka suatu konstruksi, seperti rangka beton, atap dan sebagainya. Tujuan
gambar struktur, untuk memperjelas bentuk dan letak konstruksi yang sudah
diperlihatkan pada gambar potongan, yang bisa membantu perencana dalam
menghitung anggaran biaya bangunan dan membantu pelaksana dalam mewujudkan
fisik bangunan dilapangan. Gambar struktur harus dilengkapi dengan informasi
berupa nama serta ukuran yang lengkap dari konstruksi yang bersangkutan.
Gambar
Penjelasan
Contoh Gambar Penjelasan
Gambar
ini menjelaskan bagian-bagian (detail) yang penting dan sulit dari suatu
konstruksi (Misal: konstruksi kusen/pintu/jendela/kuda-kuda) atau bagian-bagian
konstruksi yang bersifat arsitektonis. Gambar penjelasan harus dilengkapi
dengan ukuran dan nama sehingga pelaksana dilapangan tidak menemukan kesulitan
dalam mewujudkannya. Gambar penjelasan biasanya digambar dengan skala 1:5
sampai 1:20 atau sesuai dengan kebutuhan.








Tidak ada komentar:
Posting Komentar